金鳳書苑

JIN FENG BOOK GARDEN

 
 

本案以「如何閱讀」為核心命題,回到閱讀的本質提問:人們如何與書相遇、如何在空間中進入閱讀狀態,並進一步讓自然、光線與時間,共同成為閱讀的一部分。

基地擁有良好的採光與戶外綠景條件,因此設計上引入大量自然光與視覺穿透,讓閱讀不再侷限於室內行為,而是一種與環境共構的感知經驗。入口以一道圓弧書架輕柔劃開空間,既作為動線引導,也承接日光的流動,使人在進入的瞬間,即完成從外界到內在的轉換。

書架設計延伸自品牌語彙,採取輕透、旋轉的結構,去調整展示與分類。同時刻意打破書脊排列的慣性,改以書封平鋪呈現,使書籍的視覺語言直接與讀者產生第一層連結,讓「選書」回到直覺與感受,而非分類與檢索。

空間色彩隨著動線逐步轉化:由入口象徵起始的金色,過渡至室內帶有時間痕跡的銅色調,隱喻閱讀歷程中由外而內、由喧囂轉向沉澱的心理狀態。材質選擇上,透過石頭漆、橡木與渲染磁磚的搭配,回應紙本閱讀中微粗糙而溫潤的觸感,試圖在空間中重現「翻頁」的身體記憶。

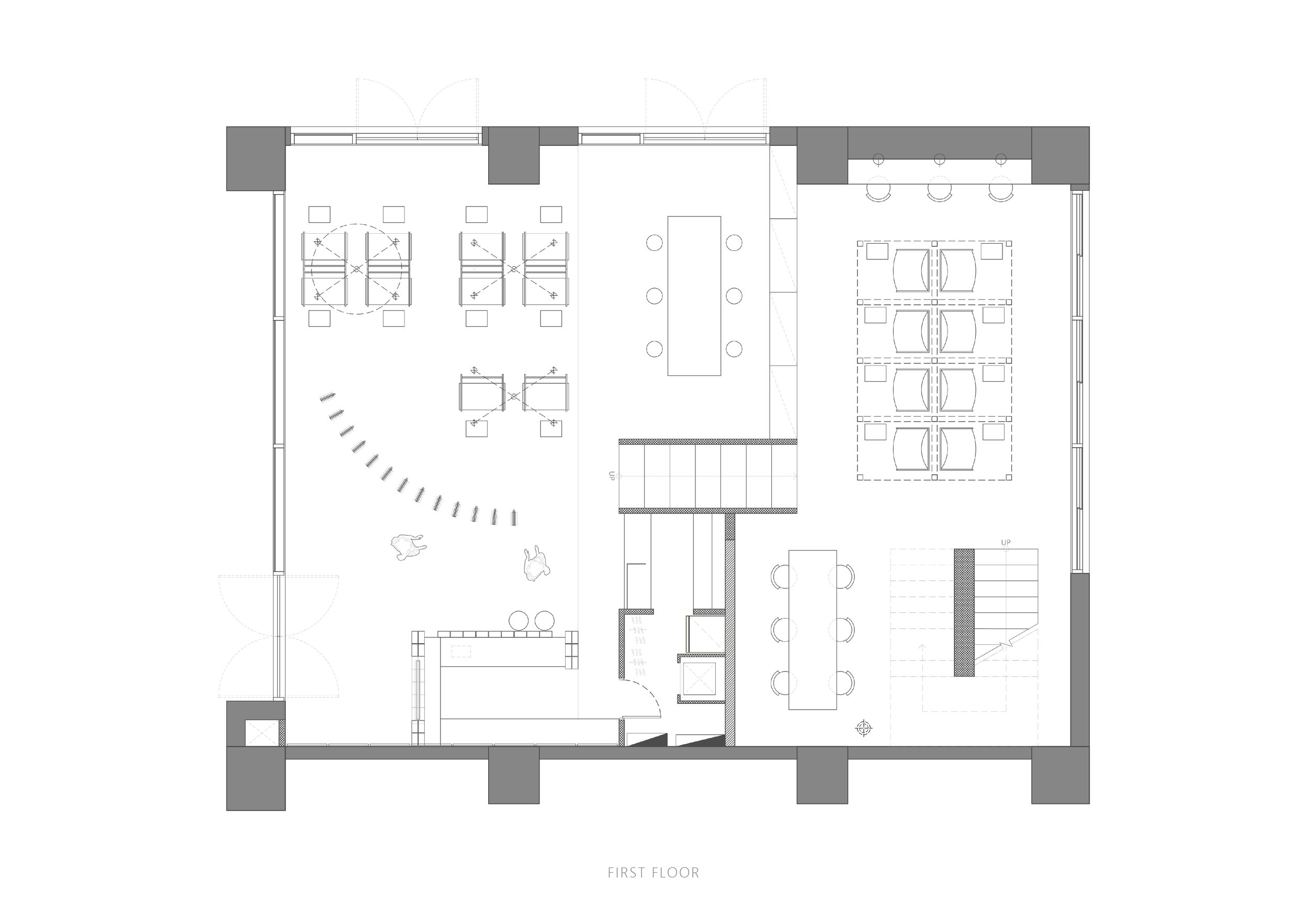
我們將閱讀方式規劃成三種場域,「人與書與環境」、「人與書與人」、「人與書」;一樓規劃為開放閱讀場域,配置具獨立性的單人座席,讓個體在群體之中仍保有與書對話的私密距離,座位上方的燈光設計,象徵「閱讀到金句時,一盞點亮人生的明燈。」同時,也規劃出一區交談空間亦融入輕度社交的可能性,使靜態閱讀能透過分享與交流產生延伸。

一樓錯層則轉為更為內向的閱讀層次。透過「詩人(私人)包廂」的設計,建立與外界隔離的私密場域,讓使用者能在更純粹的狀態下與文本對話。空間中加入可調整姿態的座椅與半透材質界面,使身體與光線皆能自由變化,形成閱讀過程中的停頓與呼吸。二樓為多功能場域,不論是舉辦讀書會或分享會及課程介紹等等,都使靜態空間多了動態的交流。

整體空間亦以「策展」作為運作邏輯。書架與書牆具備旋轉、開合與雙面展示的彈性,使空間能隨主題轉換而重新組構,不僅是內容的更新,更是觀看方式的改變。透過空間語言回應議題本身,使閱讀從靜態行為轉化為一種可被引導的體驗。

從一樓的開放到二樓的內聚,空間如同翻閱中的章節推進,透過光、材質與動線的層層堆疊,形塑一段由外而內的閱讀旅程。期望在此建立的不只是書店,而是一個讓人重新理解閱讀、並與自我對話的場所。

Location / Taipei City

Year / 2025

Area / 94 Ping

Photography / Jamieyelo x Hey!Cheese